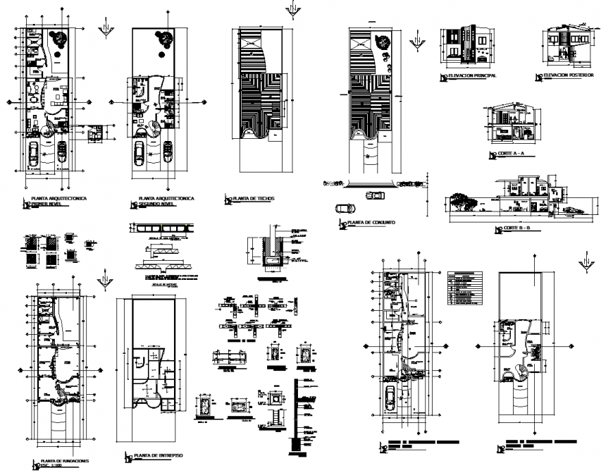
Working drawing of bungalow with all detail in dwg file.
Description
Working drawing of bungalow with all detail in dwg file. detail working drawing of bungalow, roof plan , truss roof plan and sections, section line, centre line, front elevation, and etc details.
Uploaded by:
Eiz
Luna

