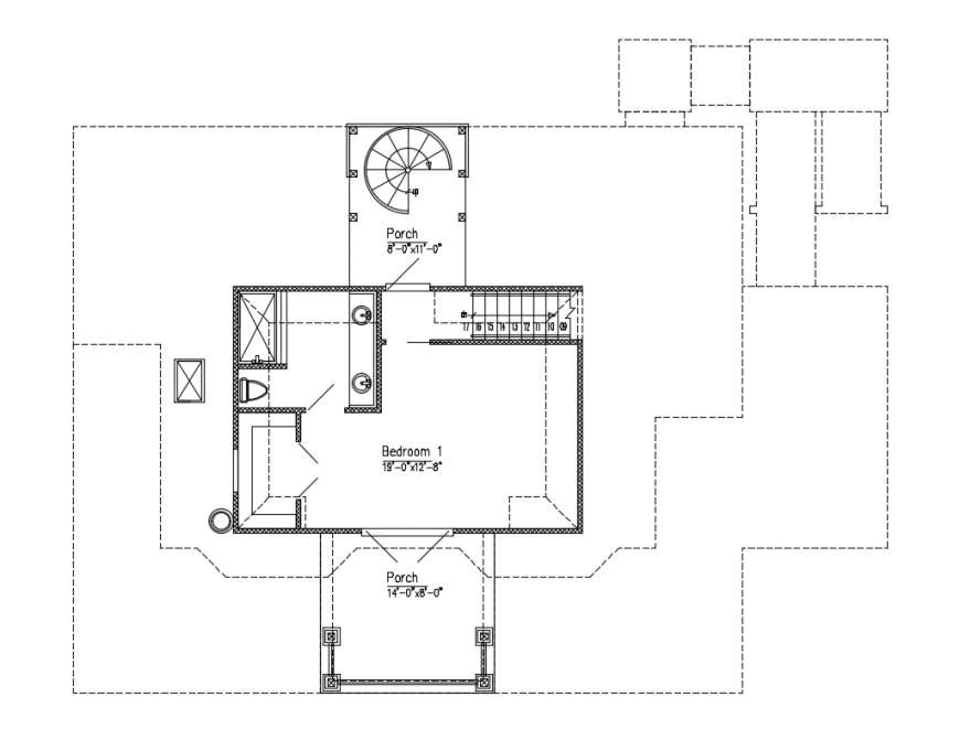
Third floor layout plan details of pent house cad drawing details dwg file
Description
Third floor layout plan details of pent house cad drawing details that includes a detailed view of porch view, bedroom view, indoor doors and windows, indoor staircases, dimensions details and much more of house floor plan details.
Uploaded by:
Eiz
Luna

