Habitational group theatre commercial stores detail dwg file
Description
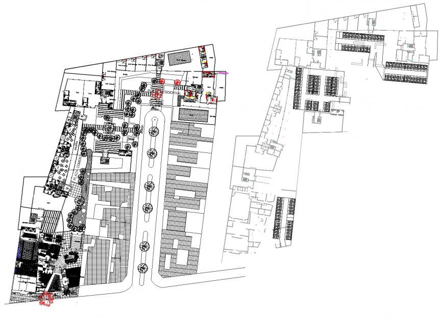
Habitational group theater commercial stores detail dwg file, landscaping detail in tree and plant detail, car parking detail, hatching detail, cut out detail, stair section detail, furniture detail in door and window detail, brick wall detail, etc.
Uploaded by:
Eiz
Luna

