Plan and elevation of hospital design with architectural detail dwg file
Description
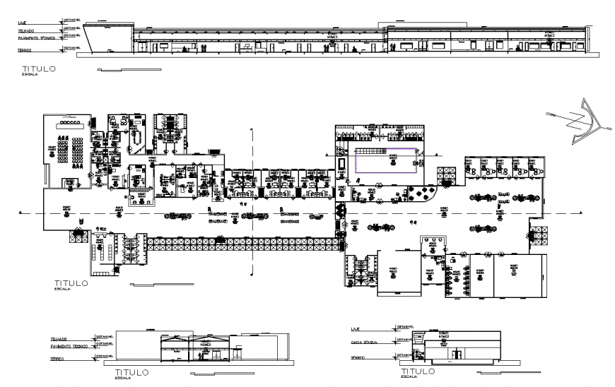
Plan and elevation of hospital design with architectural detail dwg file in plan with detail of wall detail and area distribution,different medical consultant room,washing area,laboratory area,door detail,elevation with wall and wall support area and detail of door with floor level with necessary dimension.
Uploaded by:
Eiz
Luna

