Roof plan with detail of floor plan of medical center dwg file
Description
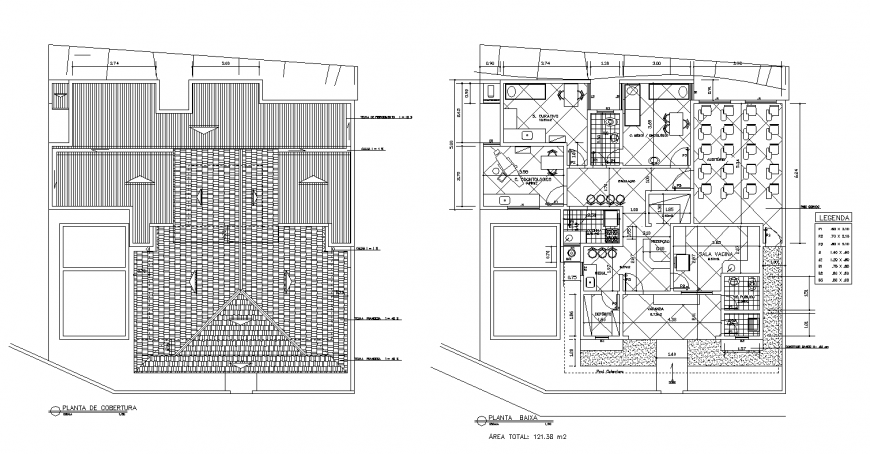
Roof plan with detail of floor plan of medical center dwg file in plan with roof area with detail of roof area with tiles of roof with wall and support area ands design with floor plan with wall and wall support area and wall with door detail,different medical consultant room with necessary dimension.
Uploaded by:
Eiz
Luna

