Mobile tower front and back elevations details with plan dwg file
Description
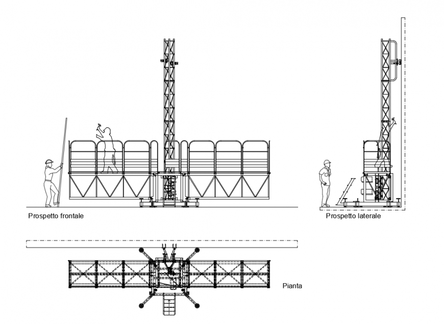
Mobile tower front and back elevations details with plan that includes a detailed view of tower front elevation, back elevation, people blocks, plan top view details and much more of mobile tower project.
File Type:
DWG
File Size:
1010 KB
Category::
Electrical
Sub Category::
Electrical Automation Systems
type:
Gold
Uploaded by:
Eiz
Luna

