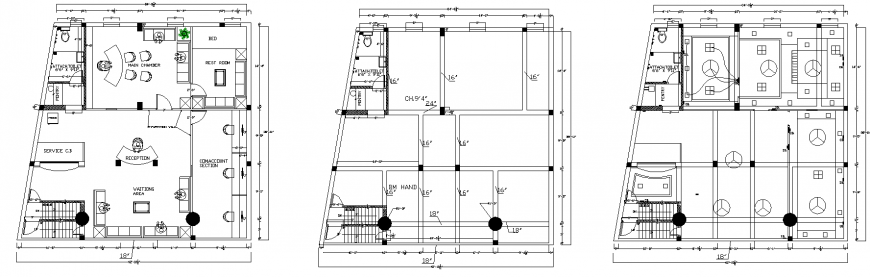
Detail working drawing of office all drawings in dwg file.
Description
Detail working drawing of office all drawings in dwg file. detail working drawing of corporate office, column and beam structure plan , electric and p.o.p design details in dwg file.
Uploaded by:
Eiz
Luna

