Site plan with location map details of medical hospital dwg file
Description
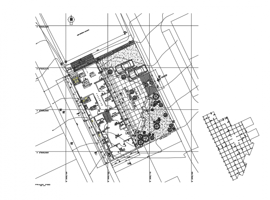
Site plan with location map details of medical hospital that includes a detailed view of legends details, road view, landmarks, technical specification, sing and sybol boards details, car parking view, green area, tree view, area details and much more of location map details.
Uploaded by:
Eiz
Luna
