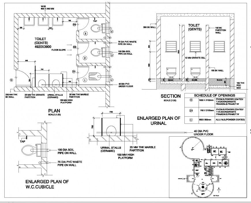
Sanitary public toilet plan, elevation and section layout file
Description
Sanitary public toilet plan, elevation and section layout file, dimension detail, naming detail, brick wall detail, flooring detail, cut out detail, orisapan detail, water closed detail, pipe lien detail, furniture detail in door and window detail, etc.
File Type:
DWG
File Size:
896 KB
Category::
Interior Design
Sub Category::
Bathroom Interior Design
type:
Gold
Uploaded by:
Eiz
Luna

