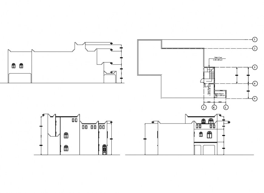
Right, front and rear elevation details of villa with roof layout plan dwg file
Description
Right, front and rear elevation details of villa with roof layout plan that includes a detailed view of flooring view, doors and windows view, staircase view, balcony view, wall design, dimensions, roof or terrace view, car parking view, bathroom, maid room and much more of villa project details.
Uploaded by:
Eiz
Luna
