House roof plan with beam and anchor schedule cad structure details dwg file
Description
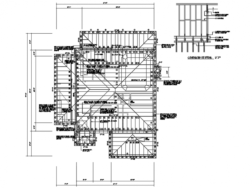
House roof plan with beam and anchor schedule cad structure details that includes a detailed view of wood posts, joints, decking, grider pre-engineering, steel pipe column, play joints, existing floor joints, knee wall, steel pipe column, beam schedule details, dimensions details, measures and much more of structure details.
Uploaded by:
Eiz
Luna

