Lift design plan and section layout file
Description
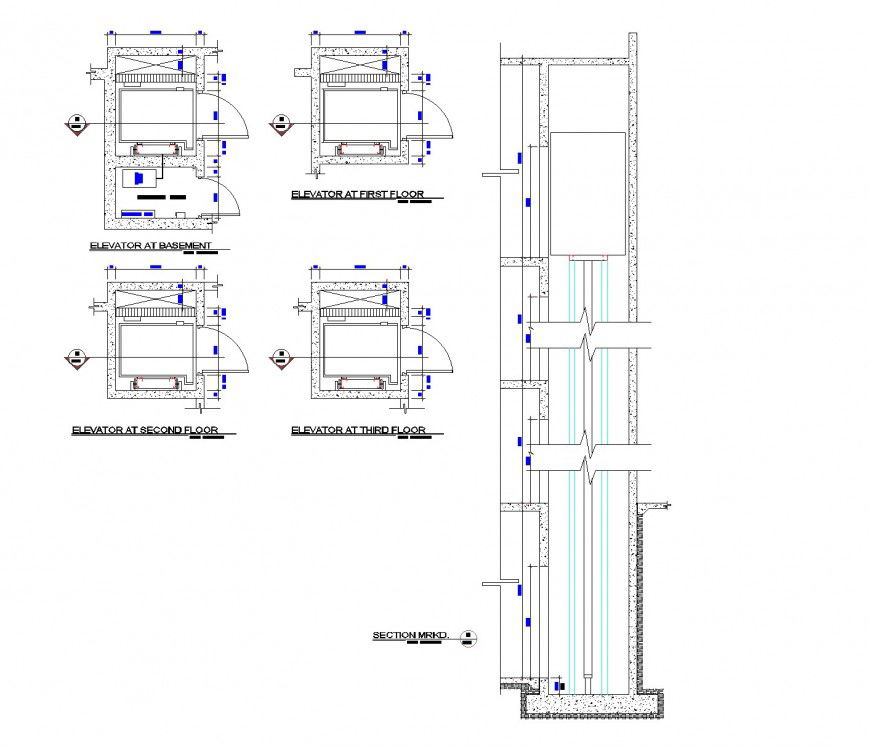
Lift design plan and section layout file, section lien detail, dimension detail, naming detail, concrete base detail, cut out detail, nut bolt detail, reinforcement detail, not to scale detail, hatching detail, concrete mortar detail, etc.
File Type:
DWG
File Size:
57 KB
Category::
Mechanical and Machinery
Sub Category::
Mechanical Engineering
type:
Gold
Uploaded by:
Eiz
Luna

