Three flooring house floor plan and electrical layout plan details dwg file
Description
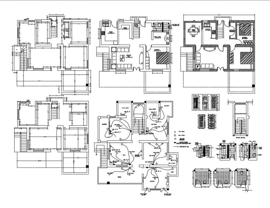
Three flooring house floor plan and electrical layout plan details that includes a detailed view of power layout details, lighting layout details, computation and schedule of loads, general notes and specifications, panel board details, riser diagram, convienence details, legends and electric equipment details with main entry house door, drawing room, living room, family hall, kitchen, dining area, indoor staircases, laundry area, balcony, bedroom, master bedroom, toilets and bathroom and much more of house project.
Uploaded by:
Eiz
Luna

