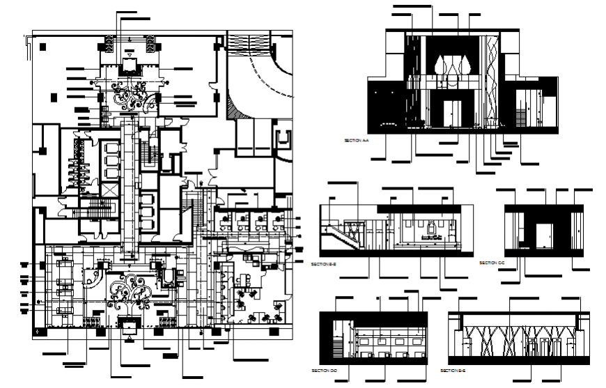
Finance house furniture layout plan drawing in dwg file.
Description
Finance house furniture layout plan drawing in dwg file. Working drawing of finance house with furniture planning layout. Finance house sectional elevation working drawing. Internal section drawing.
Uploaded by:
Eiz
Luna

