Bungalow working layout drawing in dwg file.
Description
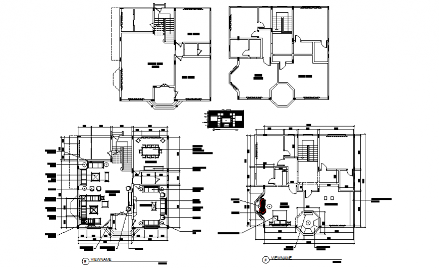
Bungalow working layout drawing in dwg file. Furniture working layout drawing of first and second floor. T.V unit with wall hung book shelf working drawing.
Uploaded by:
Eiz
Luna
Bungalow working layout drawing in dwg file. Furniture working layout drawing of first and second floor. T.V unit with wall hung book shelf working drawing.
Uploaded by:
Luna