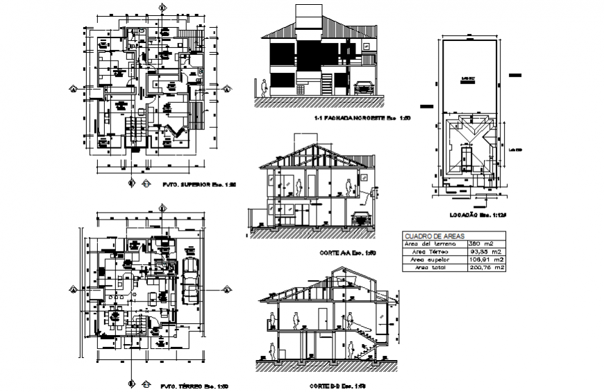
Private bungalow working layout drawing in dwg file.
Description
Private bungalow working layout drawing in dwg file. First floor and second floor working layout drawing. Front elevation, internal sectional front elevation and back sectional elevation.
Uploaded by:
Eiz
Luna

