Landscape patio design of bungalow drawing in dwg file.
Description
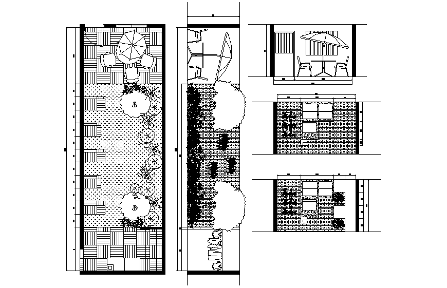
Landscape patio design of bungalow drawing in dwg file. Detail landscaping with coffee table. Wall elevation of garden with dimensions.
Uploaded by:
Eiz
Luna
Landscape patio design of bungalow drawing in dwg file. Detail landscaping with coffee table. Wall elevation of garden with dimensions.
Uploaded by:
Luna