Column plan and elevation with its mounting design dwg file
Description
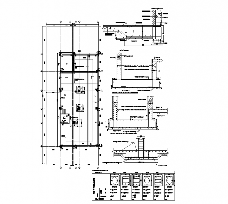
Column plan and elevation with its mounting design dwg file in plan with detail of different design of column and elevation with detail of area and detail with base area and detail of wall area and plan with detail of column mounting position with detail of column and necessary dimension.
Uploaded by:
Eiz
Luna

