Plan of housing area with architectural detail dwg file
Description
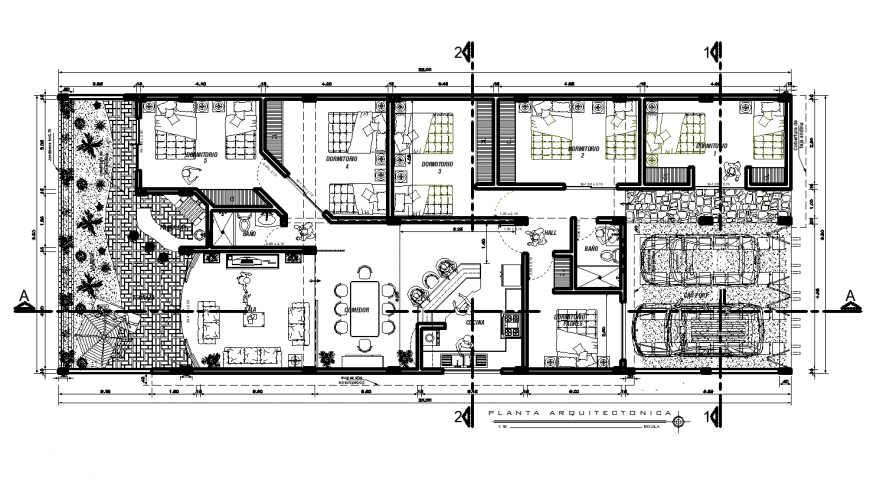
Plan of residential area with architectural detail dwg file in plan with detail of area with wall and distribution detail and bedroom and washing area detail and door detail and sectional elevation with detail of floor and floor level detail with necessary dimension.
Uploaded by:
Eiz
Luna
