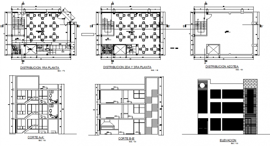
Restaurant three floor building plan in dwg file.
Description
Restaurant three floor building plan in dwg file. Distribution 1st floor, 2nd floor and 3rd floor furniture layout plan with dimensions. Sectional elevation with stairs, window and toilet working detail of the building. Exterior elevation drawing of restaurant.
Uploaded by:
Eiz
Luna

