Detail hospital building Structure 2d view layout plan
Description
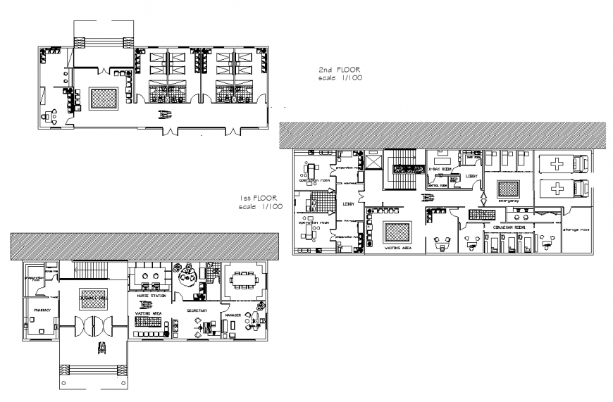
Detail hospital building Structure 2d view layout plan, entrance hall detail, room detail, door and window detail, furniture detail, dining area detail, waiting area detail, manager office detail, floor level detail, wall and flooring detail, nurse room detail, pharmacy room detail, operation room detail, storage room detail, staircase detail, scale 1:100 detail, hatching detail, lobby detail, etc.
Uploaded by:
Eiz
Luna

