Electrical line of residential area with electrical diagram dwg file
Description
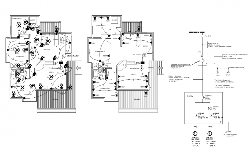
Electrical line of residential area with electrical diagram dwg file in plan with detail of room and area distribution with connection detail of electrical point with electrical line design with electrical diagram design.
Uploaded by:
Eiz
Luna

