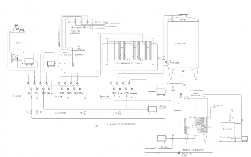
Oil chamber and distribution plant drawing in dwg file.
Description
Oil chamber and distribution plant drawing in dwg file. detail drawing of oil chamber and distribution plant, connection and plantation detail drawing , with different joinery and connections.
Uploaded by:
Eiz
Luna

