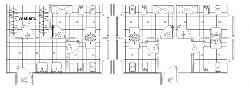
Two different type of toilet drawing in dwg file.
Description
Two different type of toilet drawing in dwg file. detail drawing of two different types of toilet, with furniture details, flooring details, furniture detail drawing , with all view.
File Type:
DWG
File Size:
44 KB
Category::
Dwg Cad Blocks
Sub Category::
Sanitary CAD Blocks And Model
type:
Gold
Uploaded by:
Eiz
Luna

