Contact hospital architecture layout plan cad drawing details dwg file
Description
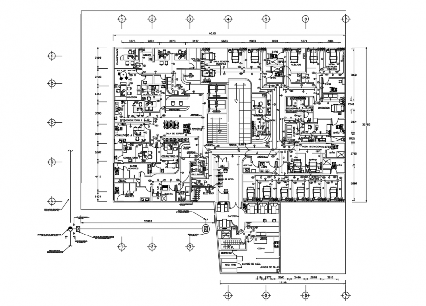
Contact hospital architecture layout plan cad drawing details that includes a detailed view of specimen collection, emergency laboratory, imagenology, laboratories, circumbulatory, waiting rooms, sanitary man, duct, central nursing, sanitary, x-ray, tomography, mastography and desitography, rest area and sanitary, development and printing , interpretation, emergency laboratory, special tests, washing and stirilization, classification and distribution of samples, washing and sterilization. culture media and much more of hospital plan.
Uploaded by:
Eiz
Luna
