Architecture layout plan details of multi-flooring college building dwg file
Description
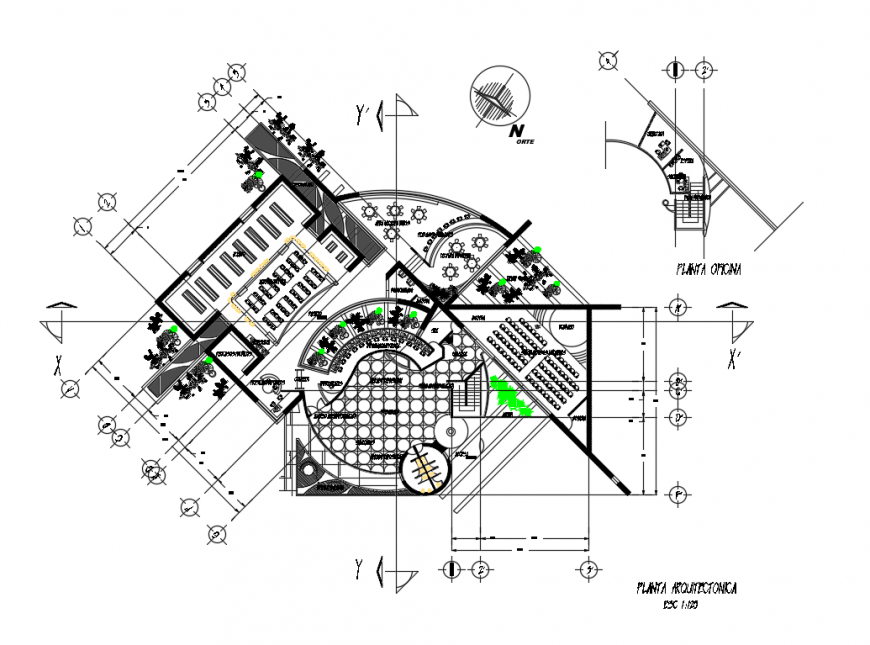
Architecture layout plan details of multi-flooring college building that includes a detailed view of main entry gate, office plant, parking area for students and staff, outdoor garden, tree view, classrooms, stream departments, library, laboratory, staff romm, cultural hall, sanitry for staff, sanitary for students, canteen/cafaeteria, sports ground, meeting room, cleaning department, admission office, clerk room, principal or head office and much more of college layout plan details.
Uploaded by:
Eiz
Luna

