Staircase and several construction details of private school dwg file
Description
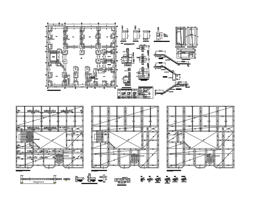
Staircase and several construction details of private school that includes a detailed view of foundation plan, structure details, floor construction, beam construction, floor wise structure and constructive details with memory of materials, footings details, staircase construction and sectional details, steps details, dimensions, column view, beam construction, covers closure type and , soil burried wall closure type and , exterior solera, holes, interior partition, granite veneer of the country with steel supports and much more of school project.
Uploaded by:
Eiz
Luna

