Private health clinic layout plan cad drawing details dwg file
Description
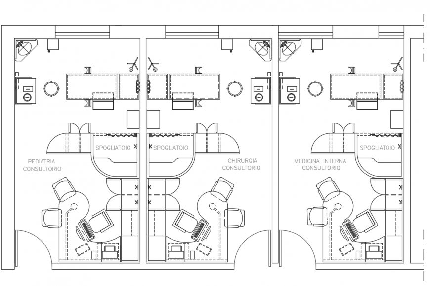
Private health clinic layout plan cad drawing details that includes a detailed view of main entry gate, reception area, waiting area, consulting room, doctors cabin, sanitary facilities, furniture details, interior details and much more of clinic details.
Uploaded by:
Eiz
Luna

