Two story house elevations, sections, doors and windows details dwg file
Description
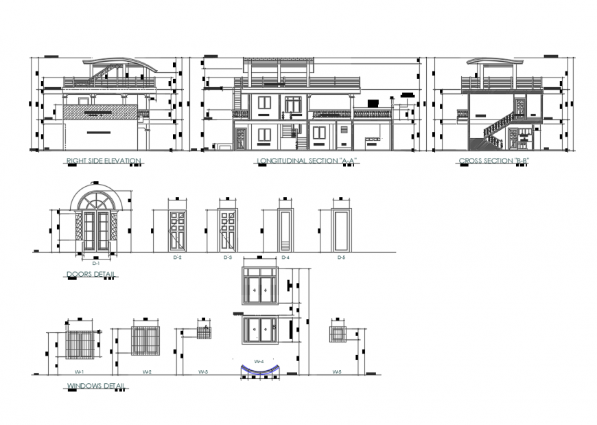
Two story house elevations, sections, doors and windows details that includes a detailed view of right side elevation details, longitudinal sectional details, cut sectional details, doors and windows elevations details, dimensions details, flooring view, doors and windows view, staircase view, balcony view, wall design, dimensions, roof or terrace view and much more of house project.
Uploaded by:
Eiz
Luna
