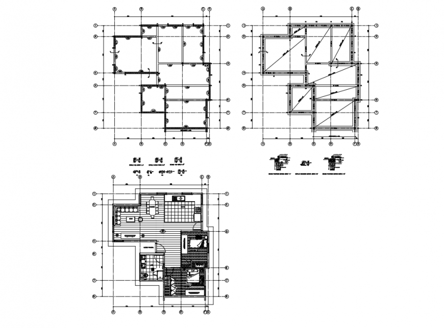
One family house layout plan details with framing plan dwg file
Description
One family house layout plan details with framing plan that includes a detailed view of main entry house door, drawing room, living room, family hall, kitchen, dining area, indoor staircases, laundry area, balcony, bedroom, master bedroom, toilets and bathroom, indoor doors, furniture details and much more of house project.
Uploaded by:
Eiz
Luna

