Home plan and elevation detail dwg file
Description
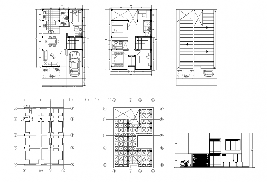
Home plan and elevation detail dwg file, centre line plan detail, dimension detail, naming detail, front elevation detail, car parking detail, landscaping detail in tree and plant detail, furniture detail in door, widow, sofa, table, chair and cub board detail, etc.
Uploaded by:
Eiz
Luna

