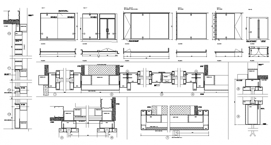
Steel and glass openings details 2d view layout file
Description
Steel and glass openings details 2d view layout file, concrete masonry detail, dimension detail, naming detail, plan view detail, steel bracket detail, nut bolt required for joints and connection, hatching detail, cut out detail, numbering detail, width and height detail, line drawing, leveling detail, steel and glass detail, etc.
Uploaded by:
Eiz
Luna

