Steel and wooden structure detail section 2d view dwg file
Description
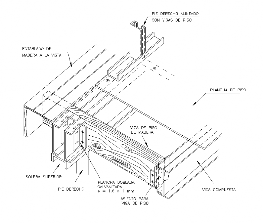
Steel and wooden structure detail section 2d view dwg file, line drawing detail, naming detail, I angle section detail, nut bolt Fixtured for joints and connection detail, steel bracket detail, isometric view detail, C-channel section detail, web plate detail, flange plate detail, hidden line detail, wooden planks detail, wooden floor beam detail, floor plate detail, galvanized plate detail, etc.
Uploaded by:
Eiz
Luna

