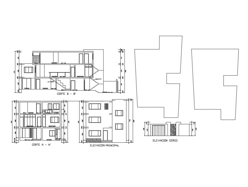
House facade elevation, gate elevation with front and back sectional details dwg file
Description
House facade elevation, gate elevation with front and back sectional details that includes a detailed view of flooring view, doors and windows view, staircase view, balcony view, wall design, dimensions, roof or terrace view, car parking view and much more of house project.
Uploaded by:
Eiz
Luna
