Two Bedroom House Foundation and Floor Plan AutoCAD DWG Drawing
Description
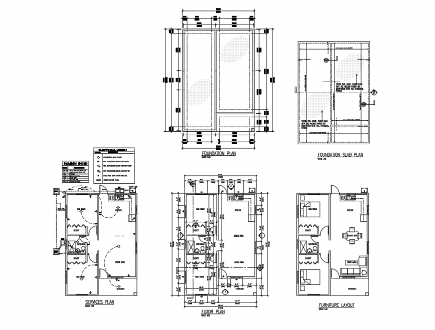
Two bedroom house foundation plan, foundation slab plan, service plan, floor plan and auto-cad details that includes a detailed view of foundation plan details, foundation slab plan details, floor plan layout details, furniture layout plan details, service plan details, electrical legends, plumbing legends details and much more of house project.
Uploaded by:
Eiz
Luna
