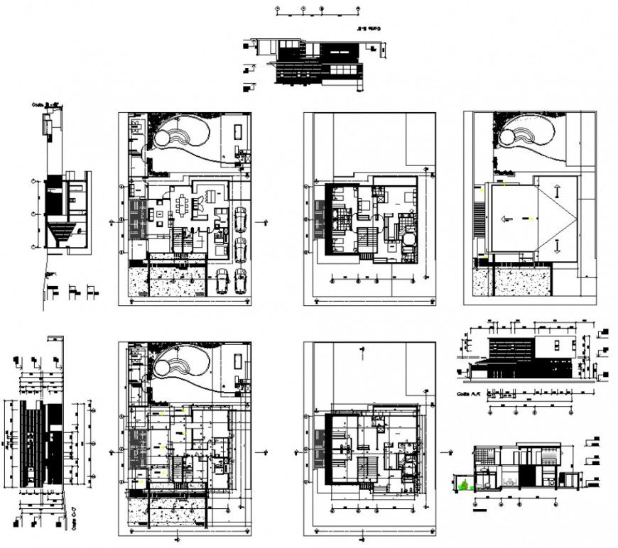
Golf clubhouses project detail elevation, plan and scetion 2d view layout file
Description
Golf clubhouses project detail elevation, plan and scetion 2d view layout file, door and window detail, dimension detail, floor level detail, section line detail, room detail, parking space detail, plan view detail, front elevation detail, section line detail, floor level detail, numbering detail, terrace plan detail, hidden line detail, RCC structure, staircase detail, section A-A' detail, furniture detail, table and chair detail, section C-C' detail, section B-B' detail, etc.
Uploaded by:
Eiz
Luna
