Details of panels section autocad file
Description
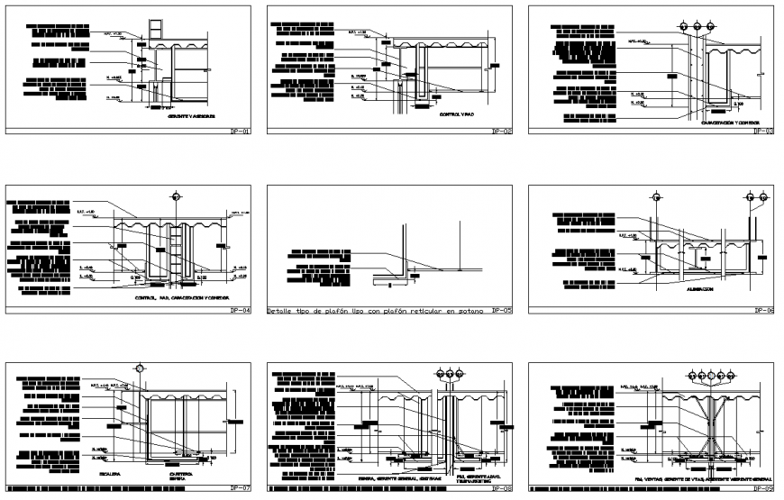
Details of panels section autocad file, dimension detail, naming detail, leveling detail, waves detail, specification detail, not to scale detail, section lien detail, hidden line detail, reinforcement detail, nut bolt detail, centre line plan detail, door detail, etc.
Uploaded by:
Eiz
Luna
