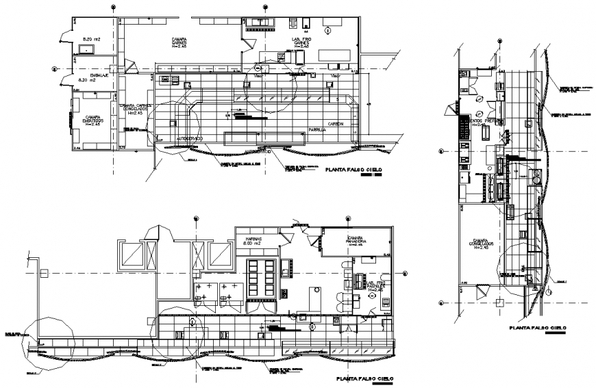
Hidden line of commercial building plan autocad file
Description
Hidden line of commercial building plan autocad file, section lien detail, hidden lien detail, furniture detail in door, table, chair and window detail, brick wall detail, flooring detail, kitchen detail in stove detail, cut out detail, not to scale detail, etc.
Uploaded by:
Eiz
Luna

