Two-level housing bungalow elevation, section and floor plan layout details dwg file
Description
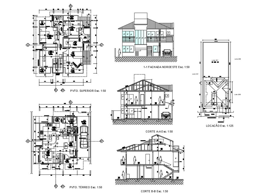
Two-level housing bungalow elevation, section and floor plan layout details that includes a detailed view of facade back and side elevations and section details with flooring view, doors and windows view, staircase sectional details, balcony view, wall sections and dimensions details, basement car parking floor, tree view, wall design with ground floor, first floor and terrace with main entry gate, mini garden, car parking view, main entry house door, drawing room, living room, family hall, kitchen, dining area, indoor staircases, laundry area, balcony, bedroom, master bedroom, toilets and bathroom, indoor doors, furniture details and much more of bungalow project.
Uploaded by:
Eiz
Luna

