Column construction detail sectional layout dwg file
Description
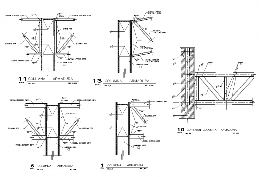
Column construction detail sectional layout dwg file, scale detail, beam detail, cut out detail, naming detail, diagonal pier detail, reinforcement provided in tension and compression zone, hidden line detail, dimension detail, railing detail, hatching detail, etc.
Uploaded by:
Eiz
Luna

