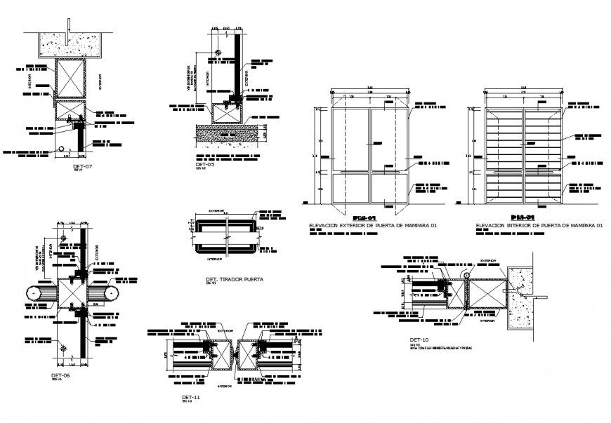
Window elevation and section 2d view layout dgw file
Description
Window elevation and section 2d view layout dgw file, interior elevation detail, exterior elevation detail, dimension detail, window frame detail, hidden line detail, lintel detail, naming detail, nut bolt required for joints and connection, steel bracket detail, cut out detail, section detail, numbering detail, scale 1:2 detail, hatching detail, etc.
File Type:
DWG
File Size:
102 KB
Category::
Dwg Cad Blocks
Sub Category::
Windows And Doors Dwg Blocks
type:
Gold
Uploaded by:
Eiz
Luna

