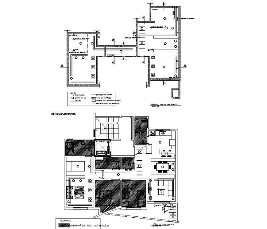
Ceiling plaster and point so lighting house plan autocad file
Description
Ceiling plaster and point so lighting house plan autocad file, dimension detail, naming detail, section lien detail, hatching detail, furniture detail in door, window, table, sofa, chair and bed detail, flooring detail, stair detail, brick wall detail, not to scale detail, legend detail, etc.
Uploaded by:
Eiz
Luna

