Junction detail trusses constructive structure cad drawing details dwg file
Description
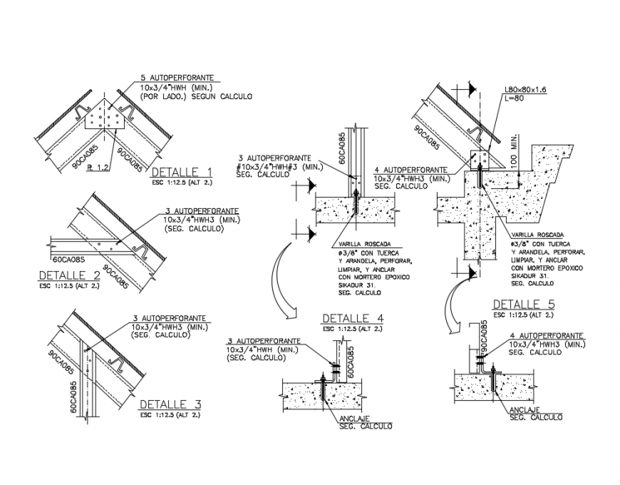
Junction detail trusses constructive structure cad drawing details that includes a detailed view of Reinforced concrete parapet, Stuffed with tezontle, average thickness, Stuck with cement-sand mortar prop, Waterproofing based on prefabricated membrane, Wall concrete hollow block smooth finish, based on granitic acrylic resins, Hollow block wall heavy type of cm, common finish, joined with sand cement mortar with horizontal reinforcement and drowned castles and much more of truss details.
Uploaded by:
Eiz
Luna

