Residential housing structural building autocad file
Description
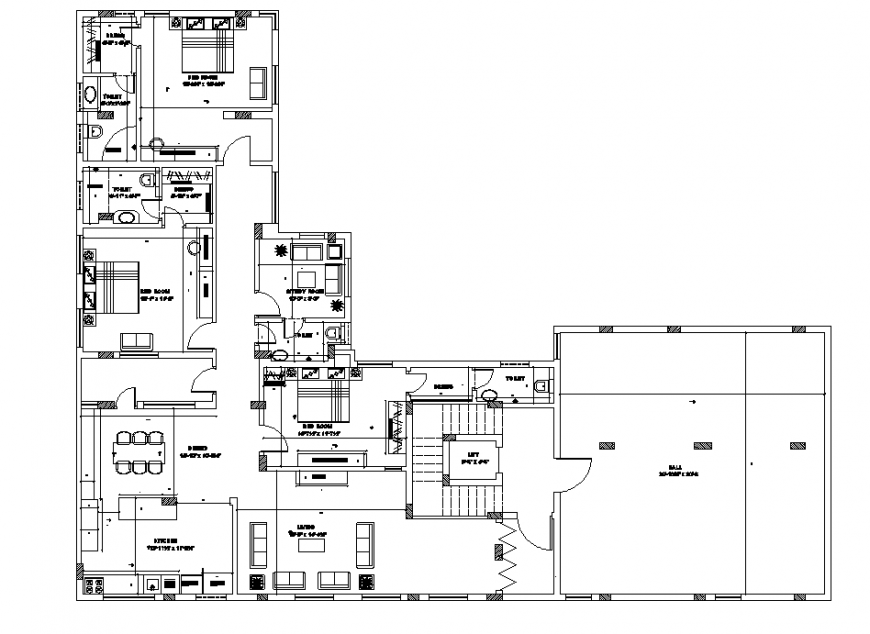
Residential housing structural building autocad file, dimension detail, naming detail, column detail, landscaping detail in tree and plant detail, brick wall detail, flooring detail, furniture detail in door, window, chair, table, sofa, cub board and bed detail, toilet detail in water closed and sink detail, hatching detail, cut out detail, not to scale detail, etc.
Uploaded by:
Eiz
Luna

