Main hall ceiling design plan and section autocad file
Description
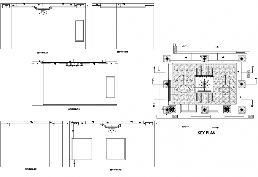
Main hall ceiling design plan and section autocad file, section line detail, dimension detail, naming detail, leveling detail, hatching detail, section A-A’ detail, section B-B’ detail, section C-C’ detail, section D-D’ detail, section E-E’ detail, furniture detail in table, chair, door and window detail, key plan detail, not to scale detail, etc.
File Type:
DWG
File Size:
394 KB
Category::
Construction
Sub Category::
Concrete And Reinforced Concrete Details
type:
Gold
Uploaded by:
Eiz
Luna

