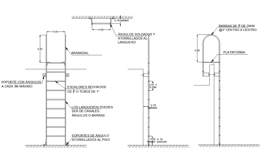
Ladder structure detail elevation 2d view layout dwg file
Description
Ladder structure detail elevation 2d view layout dwg file, front elevation detail, steps detail, naming detail, side elevation detail, side support railing detail, dimension detail, platform detail, nut bolt required for joints and connection fixtures, steel bracket detail, not to scale drawing, etc.
File Type:
DWG
File Size:
48 KB
Category::
Dwg Cad Blocks
Sub Category::
Cad Logo And Symbol Block
type:
Gold
Uploaded by:
Eiz
Luna

