College institute building structure detail plan layout dwg file
Description
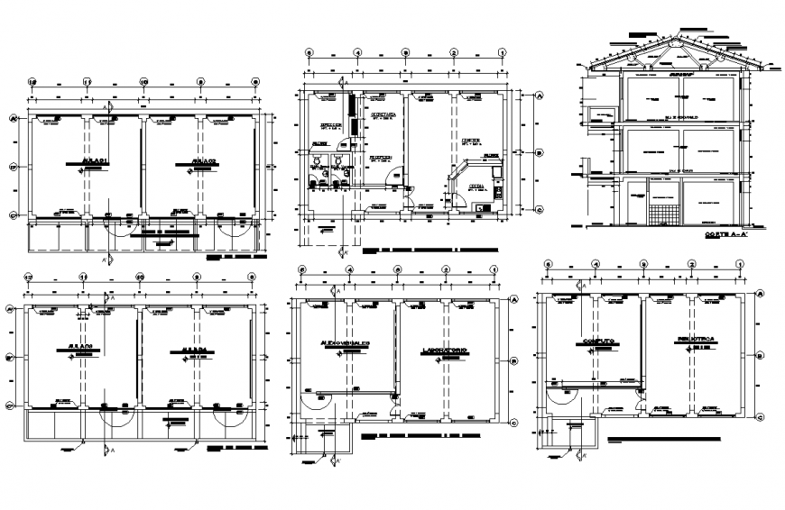
College institute building structure detail plan layout dwg file, wall and flooring detail, dimension detail, floor level detail, door and window detail, hatching detail, roofing detail, hidden line detail, column detail, staircase detail, riser and thread detail, struts detail, principal rafter detail, entrance gate detail, sanitary toilet detail, class room detail, section line detail, vent detail, section A-A' detail, leveling detail, roof span detail, nut bolt fixtures detail, etc.
Uploaded by:
Eiz
Luna

