Column and entrance gate structure detail 2d view layout autocad file
Description
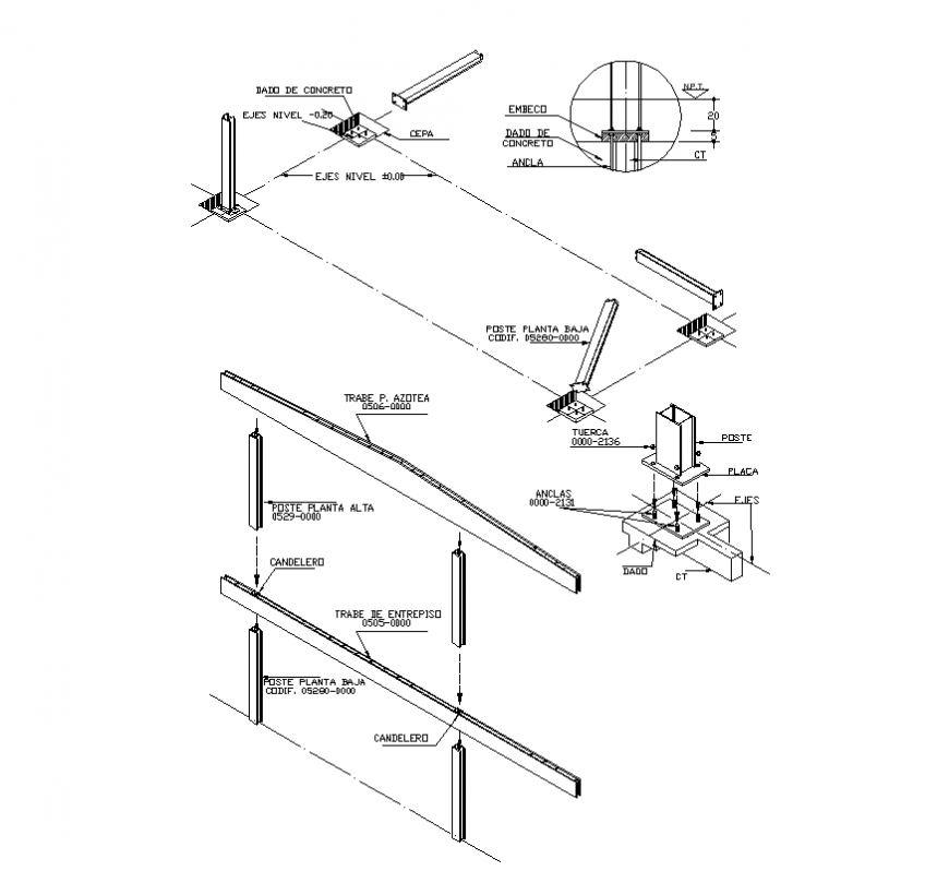
Column and entrance gate structure detail 2d view layout autocad file, isometric view detail, hidden line detail, naming detail, ground floor pole detail, nut bolt fixtures and fasteners detail, bottom and top plate detail, lock roof detail, anchors detail, plate detail, concreting detail, strain detail, axes level detail, etc.
Uploaded by:
Eiz
Luna

