College commercial building planning detail dwg file
Description
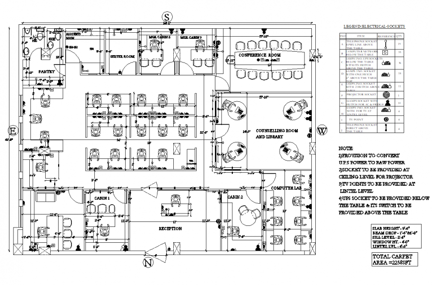
College commercial building planning detail dwg file, dimension detail, naming detail, specification detail, legend detail, furniture detail in door, window, table and chair detail, people detail, cut out detail, brick wall detail, north direction detail, total carpet area = 2258SFT detail, flooring detail, not to scale detail, etc.
Uploaded by:
Eiz
Luna

