A Ceiling design college room detail dwg file
Description
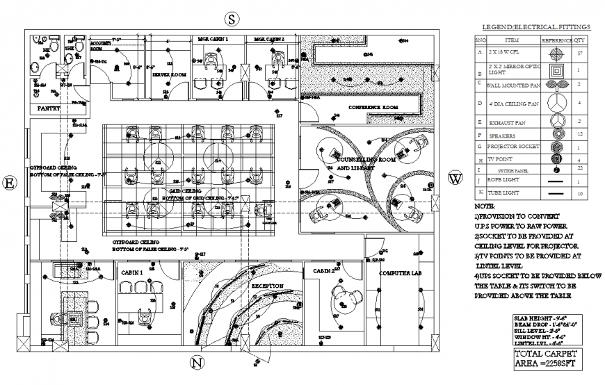
A Ceiling design college room detail dwg file, different room in different design detail, legend detail, specification detail, reception table design detail, furniture detail in door, window, table and chair detail, cut out detail, electrical point detail, dimension detail, naming detail, not to scale detail, direction detail, hidden lien detail, not to scale detail, hatching detail, etc.
Uploaded by:
Eiz
Luna
